精细化模板施工流程:
测量防线→钢筋验收→根部找平钉压条→墙柱模板安装→穿对拉螺栓→模板加固→顶板梁支撑→梁模安装→板底主龙骨→板底次龙骨→板模铺设→模板验收。
1、测量防线
需放设轴线、墙柱定位线、墙柱控制线、厨卫间下窝定位线、外墙大角控制线。控制线距墙柱边300mm;水电位通过控制线测量放线,进行精确定位。


2、模板根部及楼层交界处处理措施
墙柱模板根部为保证模板底部平整度,楼板混凝土浇注完成后必须进行标高超平及二次收光(范围≥300mm);在支设墙体模板前底部固定压脚板(胶合板废料),安装外侧墙体模板时,根据外墙平整度,在新旧混凝土交界部位粘贴双面胶带,外侧固定15mm多层板;上述措施防止错台漏浆,预防烂根。


3、剪力墙模板
(1)剪力墙模板参数
2)次楞:次楞采用50*50钢包木,间距≦200mm,第一根与最后一根次楞从板边开始排布,然后按间距200mm进行排布,阴角、阳角、接缝处按节点做法加工。
4)对拉螺杆:地下室外墙、水池墙采用三段式对拉止水螺杆,止水铁片70*70*3厚。内墙采用M14三段式对拉普通螺栓,竖向间距同主楞,水平间距≦460mm.位置位于双钢管之间。
(2)剪力墙支撑体系大样图:




(3)T形墙、L形墙、端头墙加固大样图:



(4)墙体模板拼缝

竖向模板拼缝构造示意图

(5)剪力墙配模图:
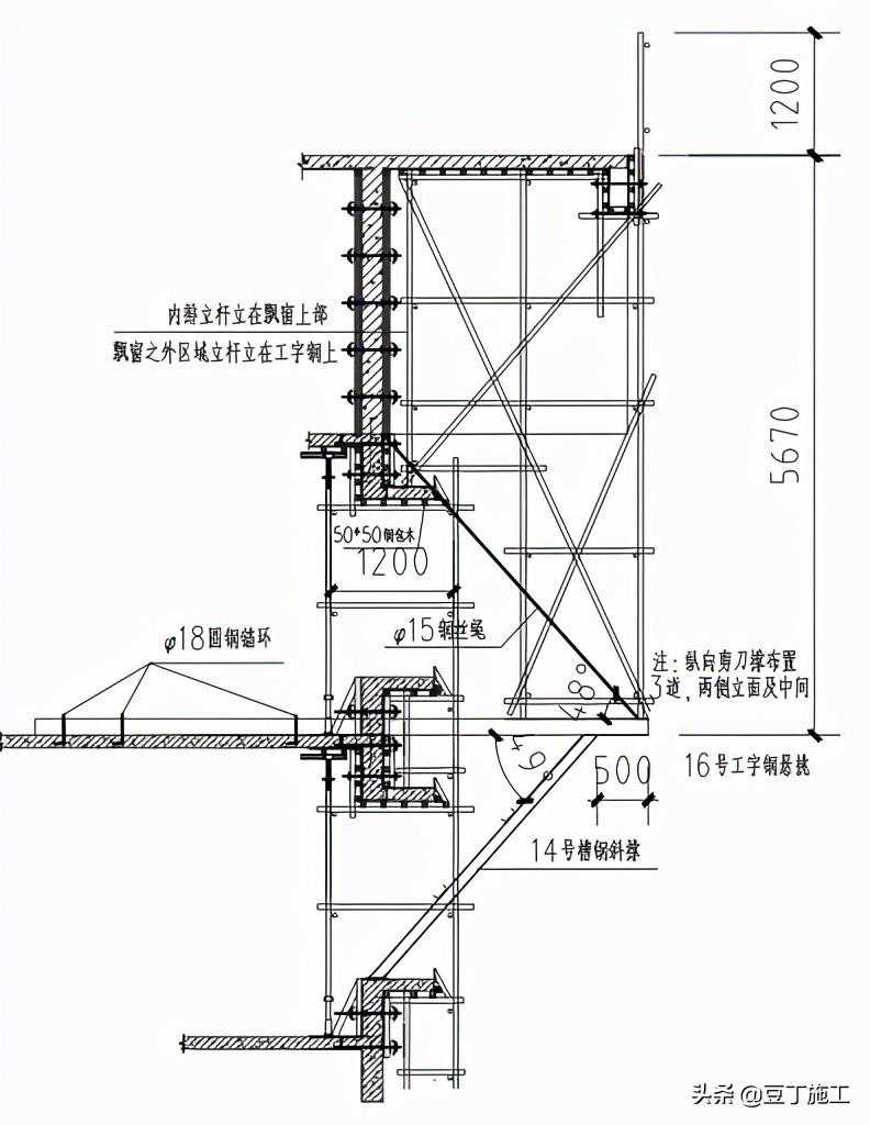
以合院A3工字钢挑梁,悬挑2.6m,内锚3.4m,挑梁间距均为1100mm左右,工字钢挑梁上直接焊接¢25的钢筋头固定件,支模架立杆插在固定件上,从而与支模架架体立杆连为一体,支模架立杆间排距均为1100mm,步距为1500mm。斜撑采用14#槽钢,距挑梁外边500mm处焊接连接,下部与九层飘窗或外窗口墙体上部的预埋铁焊接连接,为控制斜撑杆的细长比,在斜撑杆中间焊接2根通长的水平槽钢,以增加斜撑杆整体稳定性;压环采用Φ16圆钢,共设置3道,第一道为定位压环,在离建筑物外包800mm处设置;第二道、第三道为受力压环(其中第二道为备用压环),第三道压环距工字钢末端200mm处设置,第二道距第三道500mm设置,当第三道受力压环破坏后(预埋不当、受外力破坏等),第二道受力压环受力作业。
在悬挑层上方外侧边梁上设置HPB300级钢筋、直径为20mm的吊环,吊环与悬挑层楼板垂直距离为(m):2.95,拉绳与型钢梁的拉接点距离建筑物水平距离2.5m,拉绳选用6×37(φ15)的钢丝绳,钢丝绳仅作保险装置设置。



(4)坡屋面几种特殊部位配模:
1).阴角为钝角时支模
2).阴角为锐角时支模:
3).阳角为钝角时支模
对于天沟等悬挑部位采用斜撑脚手架支设。并与顶板支撑架连成整体。
8、飘窗模板
飘窗支撑立杆间距600mm,室内立杆可利用顶板支撑立杆,不足的部位采用附加立杆;室外立杆从室外地坪或车库顶板搭起,外立面设剪刀撑;三层以上飘窗外立杆采用从下层飘窗板附加斜撑杆方式支撑。
9、卫生间降板:
洋房卫生间降板为30mm,厨房间降板为230mm;合院卫生间降板为30mm,家政间、厨房间降板170mm,露台降板220mm;
本工程降板做法如下:
(1)降板30mm处模板:采用“炮竹型”板厚控制器做支撑,高度偏差不大于2mm;把单根30*30方管按需要的尺寸裁切,端部打孔,用螺栓与打好孔的30*30角钢连接成定型四边形。
(2)、降板170mm-230mm处模板:采用48*80木枋钉15厚覆面多层板,按降板高度加工定型模板,配合降板四个直角设板厚控制器,架在平台板模板上,高度偏差不大于2mm;将加工好的木枋定型模板放在板厚控制器上;在定型模板中间部位采用边模固定器固定,定型木模直角部位采用固定三角板加固,边长宜大于250mm;定型木模边长2米时在中间部位加设定型木方支撑
10、楼梯配模
由于部分楼梯梁及楼梯平台板钢筋生根于剪力墙上,而剪力墙应预留接茬口。梯板模板支撑立杆纵距横间距不大于1200mm,水平杆与梯段板平行设置,设置间距与结构板相同。休息平台水平拉杆应满足能通则通与梯板立杆拉结牢固。